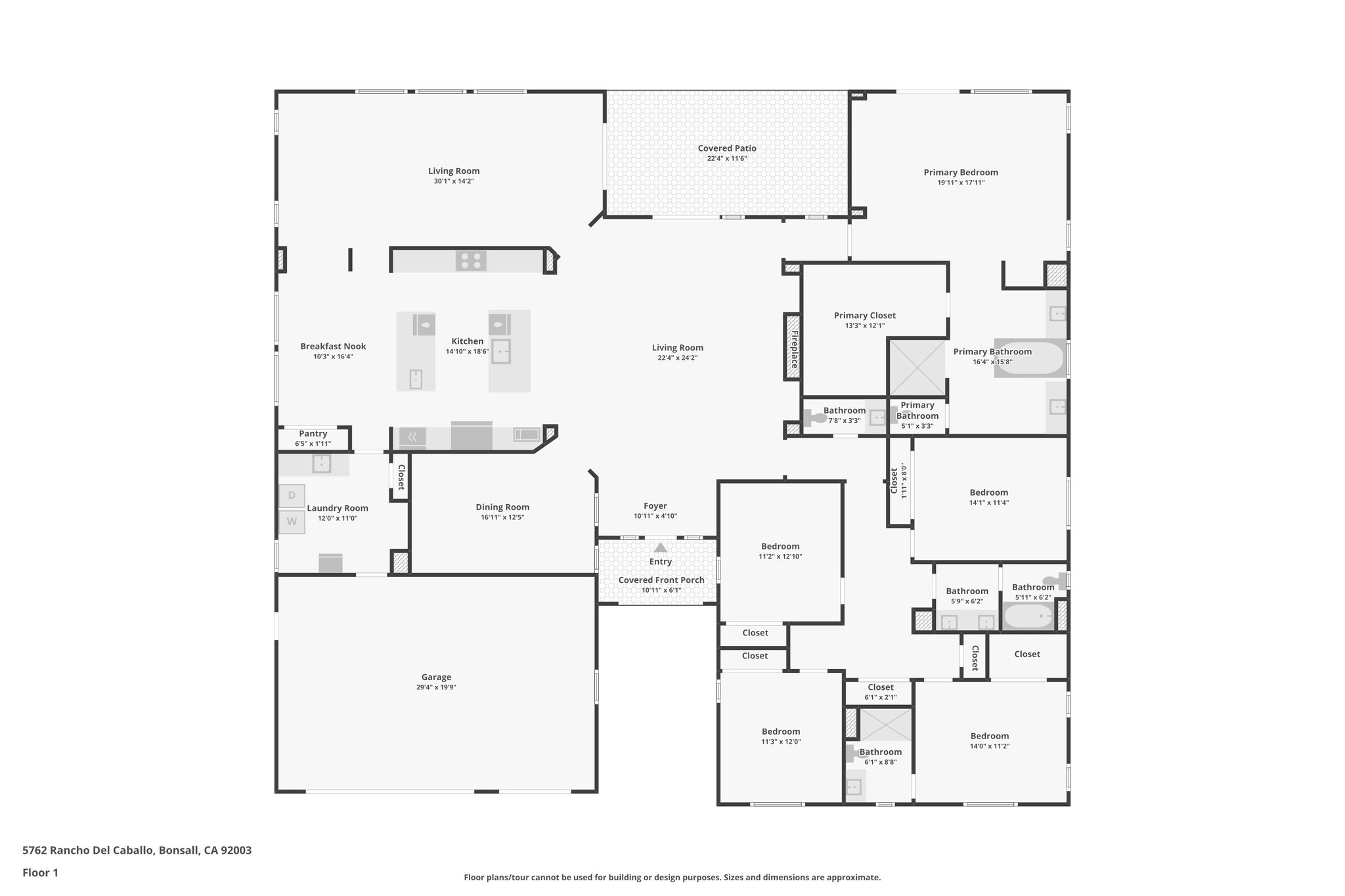
5762 Rancho Del Caballo, Bonsall, CA 92003
Toggle Navigation
Images
Floor Plans
3D Tour
Map
5762 Rancho Del Caballo
Bonsall, CA 92003
Scroll to Content
Images
Slideshow
Photo Grid
Hide
Previous
Next
Show more
Floor Plans
Slideshow
Photo Grid
Hide
Previous
Next
3D Tour