7203 San Carlos St
Carlsbad, CA 92011

Scroll to Content

Details

Updated and upgraded 2-bedroom, 2-bath home located in the outstanding gated 55+ community of Lakeshore Gardens. This unique split-bedroom floor plan offers bedrooms situated on opposite sides of the home, along with an optional room ideal for a home office, study, or additional living space. Enjoy an expansive side deck with captivating lake and rare sunset views—perfect for relaxing or entertaining. Remodeled kitchen showcases newer countertops, backsplash, cabinetry, refrigerator and oven range set in the center island, along with open space above the island to fully enjoy the view. Additional upgrades include newer flooring, baseboards, and moldings, fresh interior and exterior paint, newer ceiling fans, central air conditioning, and dual-pane windows with three sets of French double doors. French doors from the primary bedroom provide direct access to the deck. The main bathroom offers a tiled shower, and both bathrooms have updated countertops, vanities, sinks, and fixtures. The home is uniquely positioned with an open greenbelt on the left side and additional lot space on the right, enhancing privacy and outdoor appeal. Professionally re-leveled at the end of 2023, with the roof also being serviced and tuned up. Ample storage for all your needs, with THREE sheds included—perfect for tools, hobbies, or extra belongings. Lakeshore Gardens is LOCATED WEST of the I-5 FREEWAY, set on 54 acres with 384 home sites and 10 serene lakes. Lush landscaping, greenbelts, and mature trees create a park-like setting, while the ponds are home to turtles and fish—perfect for nature lovers. The expansive two-story clubhouse offers a country club feel, featuring a seating room with fireplace, billiard room, and balcony with ocean views on the upper level, plus a library, recreation room with stage, commercial kitchen, and restrooms on the lower level. Outside, enjoy a large patio with fountain, fire pit, and outdoor fireplace. Residents also benefit from a gated heated pool and spa, fully equipped gym, on site RV parking, and more. A wide variety of activities—card games, bingo, monthly breakfasts, weekly potlucks, craft groups, golf outings, ladies’ luncheons, and more—make it easy to stay active, socialize, and enjoy companionship. The community is fully enclosed with a 6-foot wall and security gates, providing peace of mind. Welcome to your new home at Lakeshore Gardens!

  • $619,000
  • 2 Bedrooms
  • 2 Bathrooms
  • 1,536 Sq/ft
  • 2 Parking Spots
  • Built in 1973
  • MLS: 2601217

Images

Videos

Content Coming Soon

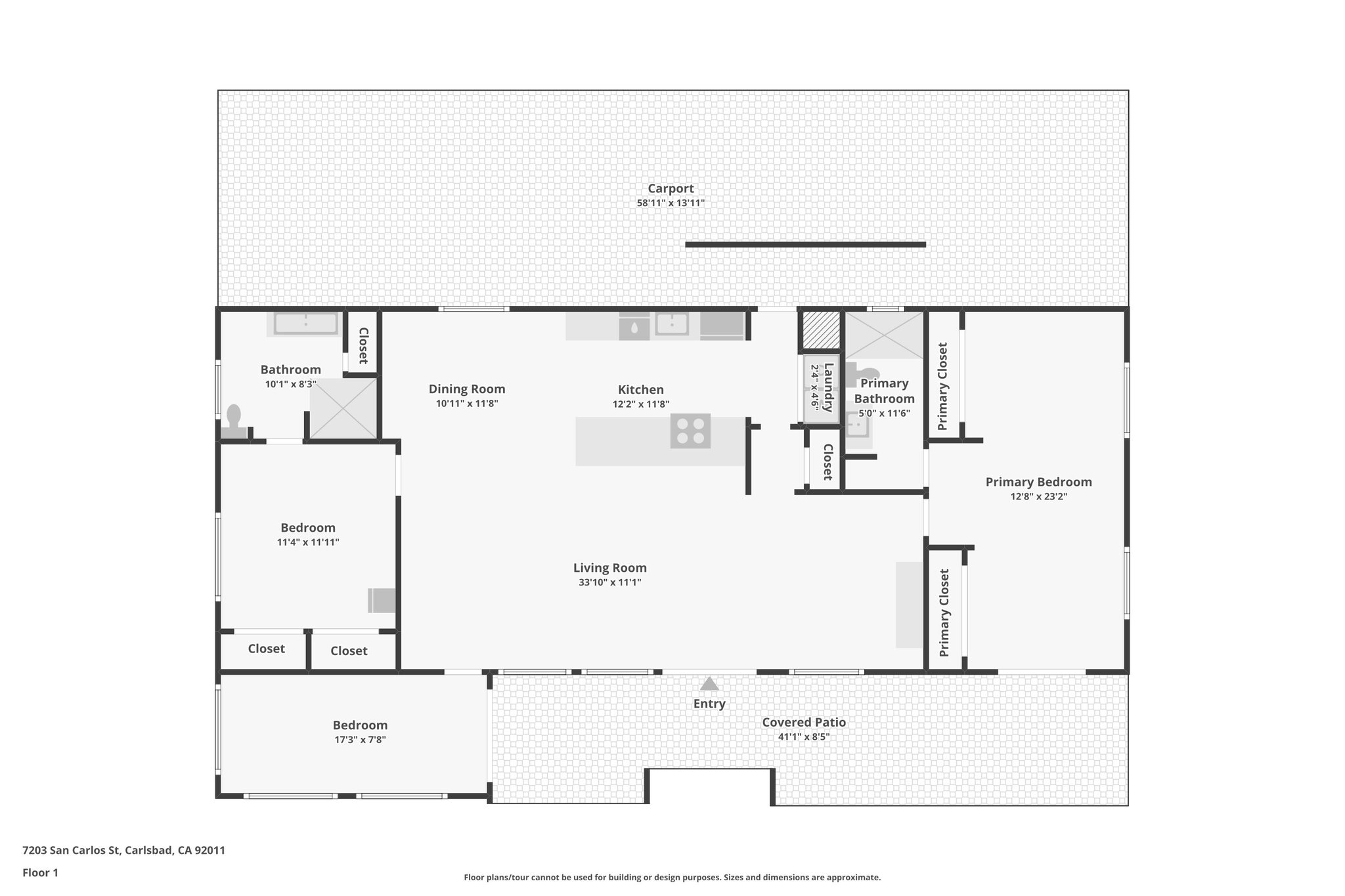
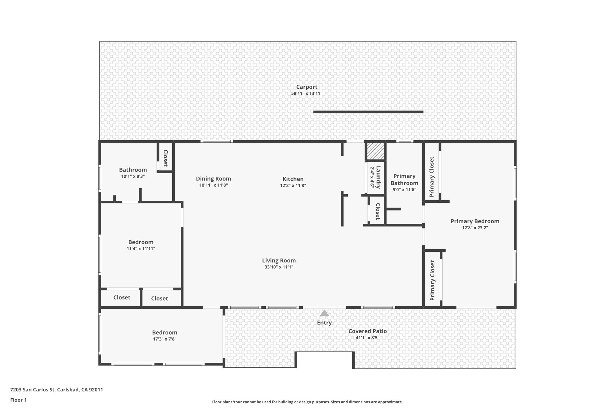
Floor Plans

3D Tour